Shophouse An Sương Quận 12 – Đã có sổ hồng
- 13.5 - 15 tỷ
- 13.5 - 15 tỷ
Tổng quan
- Shophouse
- 450
- 100
- 32907
Mô tả
Shophouse An Sương Quận 12 thuộc Dự án phát triển cơ sở hạ tầng và chỉnh trang Khu dân cư An Sương có diện tích 64 ha. Trong đó, diện tích đất dành cho nhà ở chiếm 48%, đất dành cho giao thông chiếm 31,63%, đất dành cho cây xanh chiếm 10,33%, phần còn lại dành cho các tiện ích công cộng.
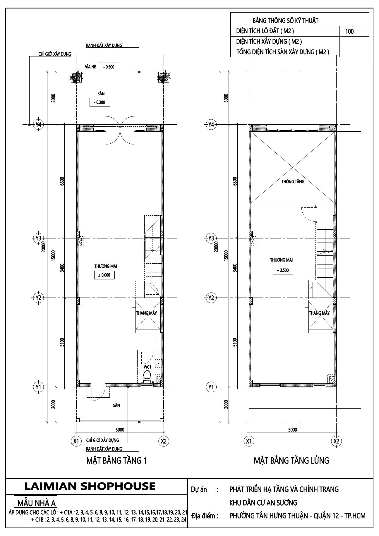
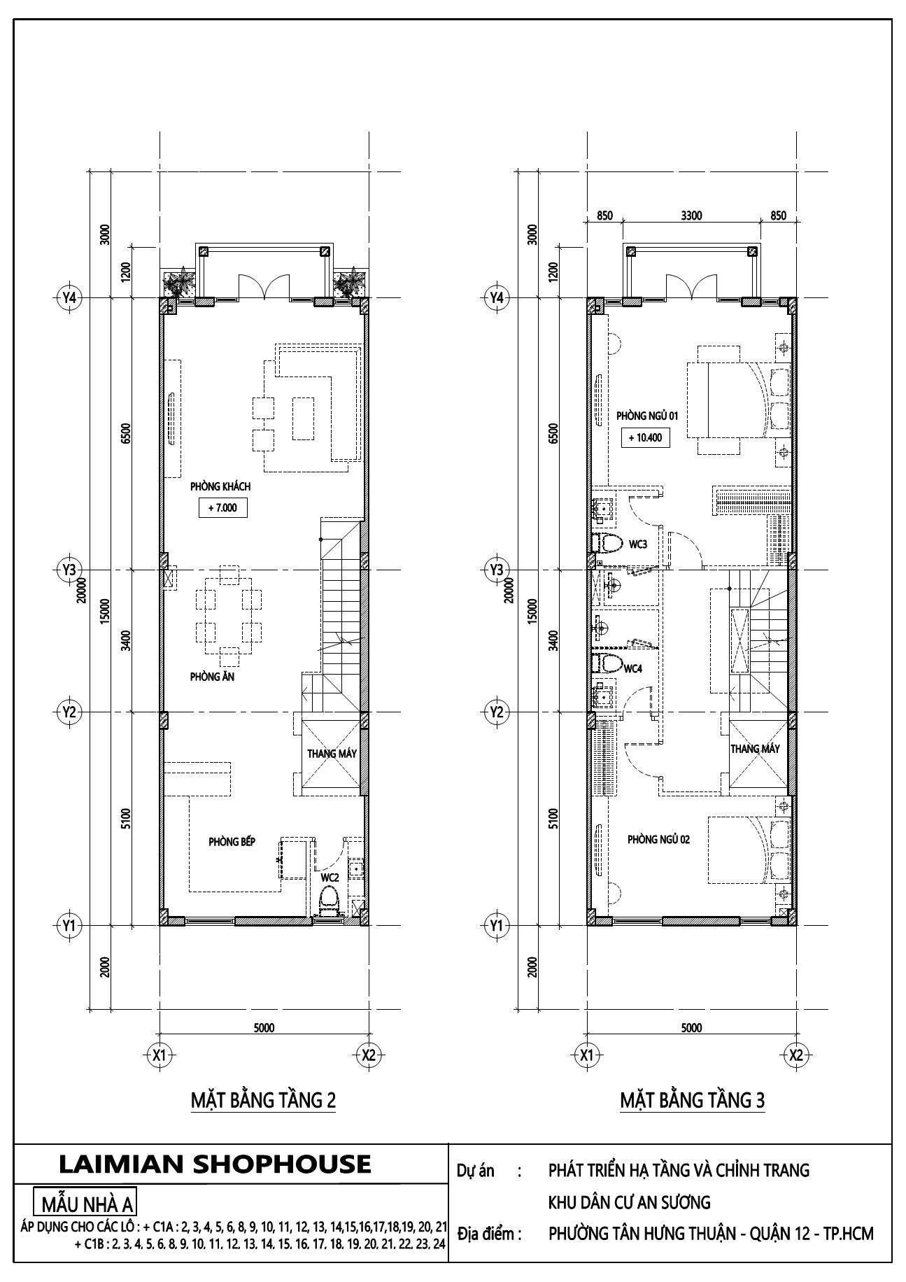
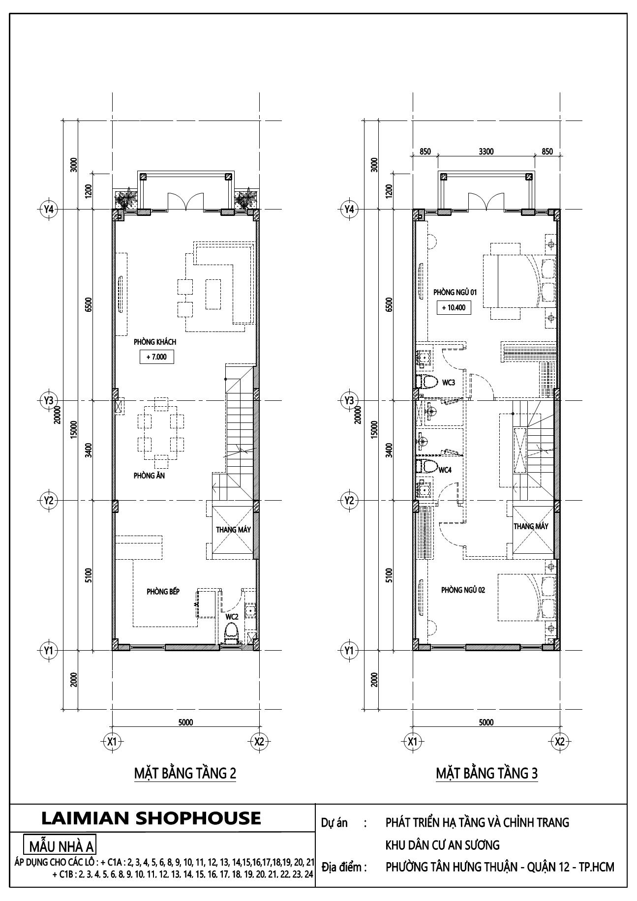
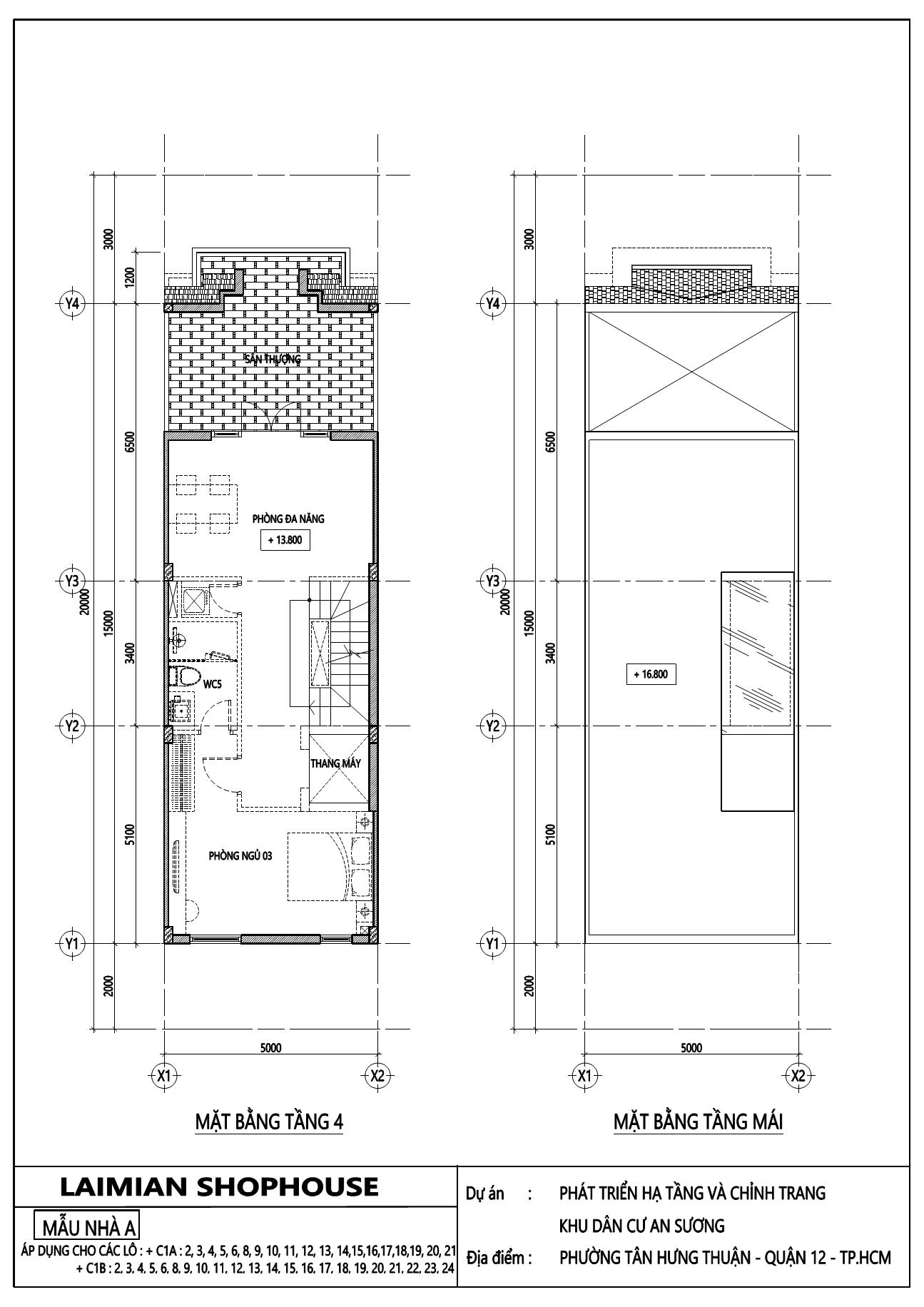
Sản phẩm của dự án Shophouse An Sương bao gồm 46 căn shophouse với diện tích 100 m2 mỗi căn. Các căn shophouse được thiết kế 1 tầng trệt, 1 tầng lửng, 2 lầu và 1 tầng thượng với tổng diện tích sàn từ 360 – 450 m2.

Phối cảnh dự án Shophouse An Sương Quận 12
THÔNG TIN TỔNG QUAN DỰ ÁN SHOPHOUSE AN SƯƠNG
- Tên thương mại: Shophouse An Sương
- Phân phối : Hayhomes
- Vị trí: Khu dân cư An Sương, Phường Tân Hưng Thuận, Quận 12, Tp.HCM
- Quy mô: 46 căn shophouse khan hiếm
- Diện tích đất: 5×20
- Diện tích sử dụng: 361m2 – 522m2
- Quy cách xây dựng: 1 trệt + lửng + 2 lầu + sân thượng
- Đơn vị xây dựng: DIC 04
- Ngân hàng tài trợ: 70%
- Tiêu chuẩn bàn giao: Hoàn thiện đồng bộ mặt ngoài thô bên trong
- Thời gian bàn giao dự kiện: 2025
- Pháp lý: Sổ hồng lâu dài
- Giá bán: Từ 13.5-15 tỷ/căn
VỊ TRÍ SHOPHOUSE AN SƯƠNG TIỀN NĂNG KINH DOANH BỀN VỮNG
Tọa lạc tại vị trí vàng khu kinh tế cửa ngõ phía Tây Thành phố Hồ Chí Minh, Shophouse An Sương sẽ là “ngòi nổ đánh thức” tiềm năng gia tăng giá trị bất động sản tại Khu dân cư 64ha quy hoạch chỉnh chu, đồng bộ từ hạ tầng giao thông cho đến hệ thống an sinh xa hội. Sở hữu Shophouse An Sương có nghĩa là quý chủ nhân sở hữu nhiều giá trị độc bản.
HỆ THỐNG TIỆN ÍCH SHOPHOUSE AN SƯƠNG CÓ SẴN
Shophouse An Sương có thể nói là kiệt tác kiểu mẫu vừa mang dấu ấn riêng vừa vẹn toàn tiện ích khi gia chủ về ở thì đã có mọi tiện ích ngay nội khu 64ha phục vụ cả gia đình 3 thế hệ như:
- Hệ thống giáo dục: Trường mầm non Phù Đổng, trường tiểu học Thần Đồng, trường THCS Phan Bội Châu, trường THPT Trường Chinh, trường đại học Hoa Sen…
- Hệ thống thương mại: Chợ An Sương, Vinmart, Bách hóa xanh, Pandora…
- Hệ thống y tế: Trạm y tế phường Tân Hưng Thuận, bệnh viện đa khoa Tâm Trí Sài Gòn…
- Hệ thống an ninh: Camera 24/4, bảo vệ 24/24, công an phường Tân Hưng Thuận
- Vui chơi giải trí: Công viên 5Ha

Trường Mần Non Thần Đồng – Tiện ích xung quanh Shophouse An Sương

Trung tâm Thương Mại An Sương – Tiện ích xung quanh Shophouse An Sương

Bệnh viện Đa Khoa Tâm Trí Sài Gòn – Tiện ích xung quanh Shophouse An Sương
TỔNG THỂ MẲT BẰNG DỰ ÁN SHOPHOUSE AN SƯƠNG
THIẾT KẾ SHOPHOUSE AN SƯƠNG QUẬN 12 TỐI ƯU CÔNG NĂNG
Với chất thiết kế mang đậm dấu ấn kiểu mẫu hoàn thiện mặt ngoài đồng bộ đậm chất hiện đại kèm theo diện tích bên trong nhà phố thương mại Shophouse An Sương Quận 12 được tối ưu công năng ưu tiên kinh doanh nhưng vẫn đảm bảo không gian ở phóng khoáng là điều đáng đê khám phá.

DUY NHẤT SHOPHOUSE AN SƯƠNG ĐÁP ỨNG 3 YẾU TỐ HIẾM CÓ
+ Môi trường sống cực kỳ thoáng kèm theo mảng xanh dày đặc
+ Yên tâm con trẻ học hành chỉ trong 5 phút có đầy đủ hệ thống giáo dục từ mầm non đến đại học
+ Công viên vui chơi giải trí chỉ vài bước chân với công đồng tri thức
+ Hệ thống chăm sóc sức khỏe luôn sẵn sàn gần kề
+ Hệ thống an ninh, bảo vệ là điều khiến quý chủ nhân Shophouse An Sương an tâm hơn với hệ thống 2 lớp và sát bên là Trung tâm cơ quan hành chính Phường, Quận 12
+ Sản phẩm giới hạn – kinh doanh vô hạn 46 căn nhưng dân số đên 12.400 người (chưa tính khu vực lân cận)
+ Mặt tiền chợ An Sương lâu đời sầm uất
+ Không gian mở, đường lớn tuyệt vời kinh doanh khách sạn mini (theo giờ), mở văn phòng đại diện, showroom….
+ Gần kề trục đường huyết mạch DD% lộ giới 30m xuyên suốt Khu dân cư An Sương

Hình ảnh thực tế.
+ 3 phút đến cửa ngõ di chuyển về các tỉnh Miền Tây & Miền Đông
+ 7 phút đến khu công viên phầm mềm Quang Trung
+ 10 phút đến Sân Golf, sân bay quốc tế Tân Sơn Nhất
+ 20 phút về Trung tâm Thành phố Hồ Chí Minh
Hãy xem 3D [FULL SCREEN] để cảm nhận sự khác biệt.
Đặc biệt nhà đã có sổ hồng, các Ngân hàng đều hỗ trợ vay lãi suất tốt.
Liên hệ ngay để biết Giá, Phương Thức Thanh Toán.
0938-231568
Địa chỉ
Mở Google Maps-
Tỉnh/Thành: Hồ Chí Minh
-
Khu vực: Quận 12
Chi tiết
Đã cập nhật vào Tháng mười một 4, 2022 tại 10:59 sáng-
ID BĐS HH32907
-
Giá 13.5 - 15 tỷ
-
Diện tích sử dụng 450
-
Diện tích đất 100
-
Loại Shophouse
-
Tình trạng Dự án, Mua
Thêm chi tiết
-
Pháp lý Sổ hồng
-
Bàn giao Hoàn thiện bên ngoài, thô bên trong
-
Hạ tầng Đi âm điện, nước, làm lại lề đường
Video
360° Virtual Tour
Thông tin liên hệ
Xem tinBĐS tương tự
Costamigo Phan Thiết
- Từ 15 tỷ căn











